
Construction Details & Material Techniques
This compilation of construction details & material techniques highlight various construction material questions I have been pondering for several years, like what is the best low-carbon way to construct an accessible path? What is the best material for a fire-resistant fence? While all of these methods are relevant to the “Columbia” Plateau, and I explored most of them with that ecosystem in mind, they are all relevant beyond that context as well. While most similar design structures solve a similar problem – all fences are creating a barrier of a sort – there remain many ways to construct a given element of a landscape, and pros and cons to each method. I hope this compilation inspires you to consider more options for materials and construction when designing landscapes.
Year: Autumn 2023
Class: L ARCH 432: Materials, Craft, and Construction
Concrete vs. Decomposed Granite Detail Comparison
These images compare concrete to decomposed granite as a material for pedestrian paths. While concrete is a ubiquitous and strong material, its production releases significant amounts of CO2 emissions. For this reason, I believe its use in landscape design must be heavily limited. However, concrete is a very effective material at making ADA–accessible paths, which are a necessity so that as many people as possible can access outdoor landscapes. Very fine decomposed granite, or a similarly fine gravel material, is the best alternative for ADA-accessible paths that I have found. However, I expect that it requires further maintenance and upkeep to keep it weed free, though that maintenance requires less strength and materials than removing and repouring a broken concrete slab, for instance. In general, I believe an ecological future requires a shift toward more maintenance which must be performed by equitably-compensated workers or engaged community members.
Info Sources:
Architekwiki, ABLE Studio, Stabilizer Solutions, Washington Rock, Climate Positive Design Pathfinder Tool
Graphic Sources:
Austin Pools & Concrete, Stabilizer Solutions, Landscape Shoppe, iStock/Arhendrix, Deposit Photos/Sutichak
Further Reading:
Dunbar Spring Neighborhood Foresters – Enhancing Pedestrian Access in the Neighborhood Forest
Eve Hart for Washington Rock Quarries – How Do I Make a Gravel Surface Wheelchair-Accessible?
Syren Nagakyrie – Trail Surface Types: Pros and Cons for Accessibility
Stabilizer Solutions, Products – Stabilized Decomposed Granite and Crushed Stone
DRY-STACKED STONE VS GABION RETAINING WALL DETAIL COMPARISON
This comparison deals with two common materials for use as retaining walls. While some other comparisons illustrate my own preference for one material over another, this is an instance where I think both options are equally suited to our climate and ecology, and the context of the project is the deciding factor. Dry-stacked stone retaining walls reflect the character of the region they’re built in when constructed with local stone and are beautiful. However, stone can be acquired from local quarries or from construction sites or farms where it has been dug up. Similarly, the material used to fill gabion baskets (metal baskets filled with rocks, often used as retaining walls) can be either mined rock or construction demolition waste or on-site rocks. In both cases, the source of the material influences its ecological sustainability, and context is the most important factor for choosing the best method.
Info Sources:
Brian Post, The Spruce, DCAK-MSA, Highland Landscape Supply
Graphic Sources:
Foresight Land Design, Lewis Landscape Services, kues1, Deposit Photos/Sutichak, Pexels
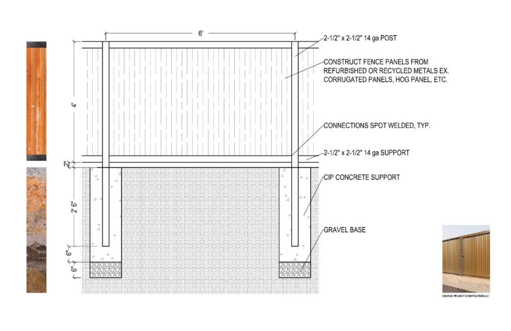
Wooden vs Steel and Reused Metal Fence Detail Comparison
These drawings compare two materials for fences – wood, arguably the most common residential fence material in the US, and steel & reused metal. I’ve been considering fireproof fence materials for several years since wildfires occur frequently in Eastern Washington’s shrub steppe. One such fire years ago was visible from my house, and I’ve realized that even a house that doesn’t directly abut shrub steppe habitat may still be close enough to wildfires to be at risk. Beside metal, fence materials I’ve considered are gabion and cob. Both of these methods take much more work to construct, which is why I’ve depicted metal here. Metal can get very hot in the summer, so using another material such as wood for gate handles is a good idea. I hope this comparison can urge designers and homeowners working in fire-prone areas to explore fire-proof fence materials or at least protect buildings from fire by putting metal flashing between wooden fences and buildings.
Further Reading:
Info Sources:
City of San Diego, City of North Miami, FL, Firewise USA, Orange County Fire Authority
Graphic Sources:
Fitzpatrick Fence & Rail, Project Construction LLC, Jan Dvorak, MILO TEXTURES, Deposit Photos/Sutichak, Freepik, Arthur Hidden
TREE GRATE VS TREE GUARD DETAIL COMPARISON
While the other entries of this series primarily compare the differences with materials, this comparison looks at the differences between two methods for protecting the soil around streetside trees from compaction. Tree grates are (unfortunately) much more common than tree guards in urban settings. These grates are metal and placed around tree trunks along sidewalks and in plazas. While they are intended to allow pedestrians to walk next to trees while preventing the soil around trees from compaction, they cause issues for trees and maintenance workers as trees grow. Tree roots tend to push up against these grates as they grow, disfiguring them, and tree trunks grow too big for them, harming the tree as it is constrained by metal. These sorts of grates are designed to be cut back as trees grow, but this rarely happens due to limited maintenance budgets. Tree guards resolve these issues by providing a barrier against compaction without constricting tree growth. However, they don’t allow pedestrians to walk up against trees. Non-human life deserves to be given the space it needs to thrive in our cities, for the benefit of our ecosystems and ourselves, so I don’t see this as a major drawback.
Info Sources:
Boston Parks & Recreation, Architekwiki, City of Lake Oswego, Federal Highway Administration, Stainlessrailing.com, James Urban, Brad Lancaster/Rainwater Harvesting for Drylands and Beyond
Graphic Sources:
Deposit Photos/Sutichak, Atlas Concrete












